Šifra oglasa: 372808, 372811    ID znak: 1739-2236-97

Poslovni prostor, Celovška cesta 106, 1000 Ljubljana

Prodajna cena  brez pripadajočih davščin 517.650 €
Vrsta Pisarna
Površina zemljišča -
Neto tlorisna površina 215 m2
Energetska izkaznica EI v izdelavi
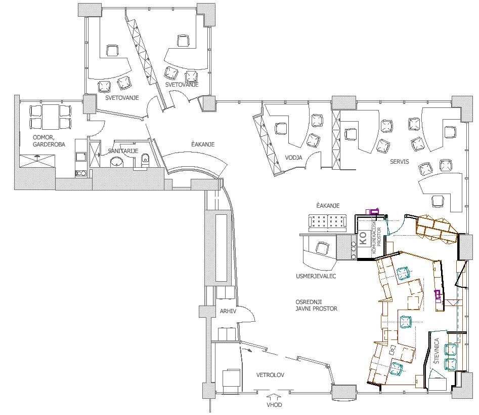
Prodamo bivšo bančno poslovalnico na naslovu Celovška cesta 106 v Ljubljani. Prostor ima lasten vhod in je lahko namenjen trgovski, pisarniški ali drugi dejavnosti. Trenutno je razdeljen na sprejemnico in več pisarn, ki se nahajajo v pritličju večstanovanjske stavbe z lastnim vhodom in sanitarijami. Nezavezujoče ponudbe za nakup nepremičnine je potrebno posredovati na elektronski naslov nepremicnine@otpbanka.si in sicer na obrazcu Javni poziv za izkaz interesa, ki ga najdete v prilogi.

To obvestilo se nanaša na vse spletne vsebine na naslovu www.assetbox.eu in www.assetbox.si. Podatki na spletnih straneh so zgolj informativne narave, zato družba ne prevzema nobene odgovornosti za katerekoli napake v vsebini ter pravilnosti in točnosti objavljenih podatkov, do katerih je morebiti prišlo zaradi časovnih neusklajenosti, napak pri vnosu ali drugih nepredvidljivih vzrokov. Družba se trudi za pravilnost informacij in podatkov na omenjenih straneh, vendar pa je potencialni kupec dolžan sam opraviti svojo lastno analizo za preverbo ustreznosti vseh informacij na podlagi katere bo sprejel poslovno odločitev o morebitnem nakupu.

Vse vsebine lahko družba kadarkoli spreminja, brez obveznosti do obveščanja uporabnikov, in ne odgovarja za posledice tako povzročenih sprememb. Vsi uporabniki vso objavljeno vsebino uporabljajo na lastno odgovornost.

Ljubljana, Slovenija
Kontakt nepremicnine@otpbanka.si ali +386 30 724 043
Pokličite nas: +386 30 724 043
Ne zamudite novih priložnosti za dobro naložbo!
Uspešno ste se prijavili na novice glede novih oglasov.